Описание
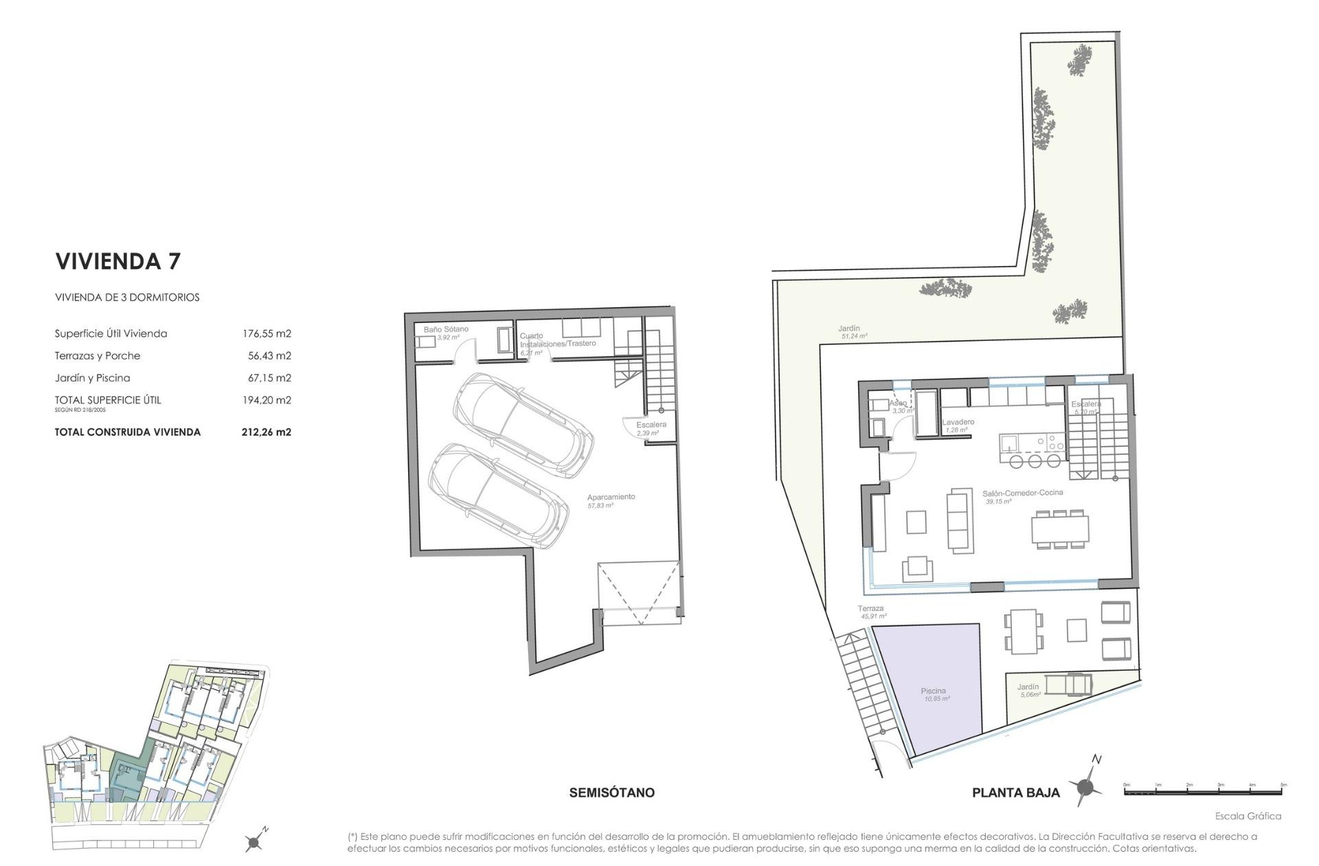
Эксклюзивные новые дома на берегу моря на продажу в Мохакаре, Коста-де-Альмерия Бутик-жилье на берегу моря в одном из самых престижных районов Мохакара Откройте для себя исключительный жилой бутик, состоящий всего из 10 эксклюзивных домов, расположенных на берегу моря в районе Ла-Мена в Мохакаре. Это привилегированное место расположение предлагает прямой доступ через Пасео-дель-Медитерранео к золотистым пескам и кристально чистым водам Средиземного моря. Окруженный пляжными клубами, ресторанами и спокойной прибрежной атмосферой, этот район идеально подходит для тех, кто ищет изысканный образ жизни на побережье. Мохакар-Плайя и Парадор-де-Мохакар находятся всего в 3 км отсюда, предлагая широкий спектр услуг, развлечений и природных красот. Элегантные дома, спроектированные для комфорта и видов на море Этот уникальный комплекс предлагает недвижимость с тремя спальнями и тремя ванными комнатами, доступную в двух конфигурациях. Покупатели могут выбрать между четырьмя таунхаусами с частным солярием и дополнительным джакузи или шестью двухквартирными виллами, каждая с собственным бассейном. Все дома включают в себя большой подземный гараж на две машины, просторные террасы и большие сады, которые позволяют максимально наслаждаться пребыванием на свежем воздухе и видами на море. Высококачественные характеристики и возможности индивидуальной настройки Каждый дом оборудован полностью установленной аэротермической системой кондиционирования, обеспечивающей максимальную энергоэффективность и комфорт в течение всего года. Кухни поставляются без мебели, что позволяет владельцам персонализировать их дизайн, с включенным полным проектом отделки. Дополнительные функции включают предварительную установку для технологии «умный дом», усиленную входную дверь и высококачественные строительные материалы, которые повышают безопасность, дизайн и долговечность. Выгодное расположение с отличной транспортной доступностью Расположенный в тихом прибрежном районе, комплекс имеет удобный доступ к ключевым местам вдоль побережья Коста-де-Альмерия. Мохакар-Пуэбло с его живописными белоснежными улочками находится всего в нескольких минутах езды. Популярные достопримечательности включают: Мохакар-Плайя 3 км Парадор-де-Мохакар 3 км Марина-де-Гарруча 12 км Поле для гольфа Marina Golf 6 км Аэропорт Альмерии 80 км Аэропорт Мурсии Корвера 150 км Обеспечьте себе дом на первой линии пляжа в Мохакаре Насладитесь образом жизни, в котором море становится частью вашей повседневной жизни, а роскошь сочетается с прибрежным спокойствием. Если вы ищете место для отдыха, постоянного проживания или эксклюзивную инвестицию, этот бутиковый комплекс на берегу моря предлагает вам непревзойденную ценность. Свяжитесь с нами сегодня, чтобы получить дополнительную информацию или договориться о просмотре.
Характеристики
Общие положения
Поверхности
состояние
Oборудование
Цена
660.000 €
3.750 €
Ипотека
ЕЖЕМЕСЯЧНАЯ ПЛАТА
---
Общая сумма
Недвижимость + расходы - вход
---
Посмотреть разбивку
Результаты являются ориентировочными, не являются обязательными и рассчитываются на основе введенных данных.
Энергетический сертификат
|
CALIFICACIÓN ENERGÉTICA
|
Consumo energía kW h / m2 año |
Emisiones CO2 kg CO2 / m2 año |
|---|---|---|
| A | ||
| B | ||
| C | ||
| D | ||
| E | ||
| F | ||
| G |
Расположение и окружающая среда












