Description
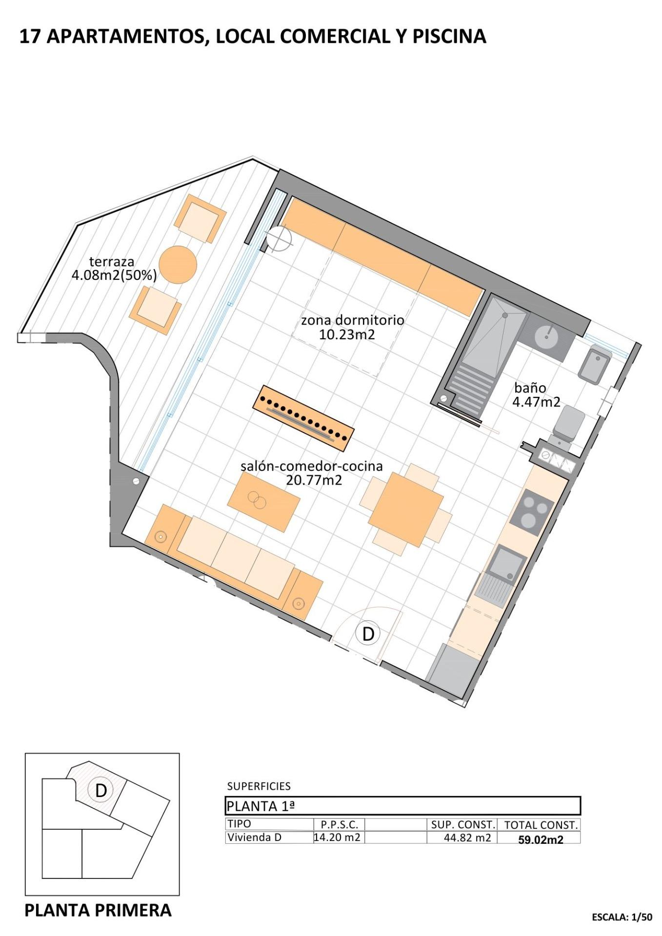
Appartements touristiques neufs près de la plage à Lo Pagan, San Pedro del Pinatar Résidence côtière exclusive avec licence touristique Ce nouveau complexe résidentiel se compose de 17 appartements modernes avec licence touristique situés à Lo Pagan, San Pedro del Pinatar, à seulement 700 mètres de la plage. Situé dans l'une des zones les plus attrayantes du Mar Menor, ce projet offre une excellente opportunité de profiter du style de vie méditerranéen tout en bénéficiant d'un fort potentiel d'investissement locatif. Lo Pagan est une zone côtière bien établie, connue pour son atmosphère détendue, ses bains de boue naturels et sa proximité avec le Mar Menor et la mer Méditerranée. Studios et appartements d'une chambre modernes Le projet propose des studios spacieux de plus de 45 m² ainsi que des appartements d'une chambre, tous conçus dans un souci de fonctionnalité et de confort. Chaque logement dispose de terrasses généreuses qui prolongent l'espace de vie à l'extérieur, idéales pour profiter du climat doux tout au long de l'année. Les cuisines ouvertes s'intègrent parfaitement aux espaces de vie lumineux, créant des intérieurs accueillants et pratiques. Tous les logements comprennent un débarras privé, ce qui ajoute un confort supplémentaire pour les propriétaires et leurs invités. Finitions de haute qualité et logements entièrement équipés Tous les appartements sont construits selon des normes de qualité élevées et sont livrés entièrement meublés et prêts à être utilisés. Les salles de bains comprennent des meubles encastrés, des miroirs éclairés, des sèche-serviettes électriques et des parois de douche. Les cuisines sont entièrement équipées d'appareils électroménagers modernes et de meubles contemporains. La climatisation par unités split est entièrement installée, garantissant un confort tout au long de l'année. De grandes portes coulissantes à trois rails entre le salon et la terrasse permettent une ouverture maximale, intégrant les espaces de vie intérieurs et extérieurs et améliorant la lumière naturelle. Espaces communs sur le toit avec piscine et solarium Le complexe résidentiel dispose d'espaces communs attrayants conçus pour la détente et les loisirs. Sur le toit, les résidents peuvent profiter d'une piscine commune et d'un solarium avec vue dégagée, facilement accessibles par ascenseur. Cet espace surélevé offre un cadre idéal pour se détendre, prendre un bain de soleil ou socialiser tout en profitant du cadre côtier. La vie à Lo Pagan et San Pedro del Pinatar San Pedro del Pinatar bénéficie d'un emplacement privilégié entre deux mers, ce qui en fait une destination prisée des amateurs de plage et des sports nautiques. La région offre des marinas, des clubs nautiques et des eaux calmes et peu profondes, idéales pour les familles. Lo Pagan est particulièrement célèbre pour ses bains de boue naturels et sa promenade animée en bord de mer, regorgeant de restaurants, de cafés et de boutiques locales. La ville dispose également d'installations sportives, d'une piscine couverte et propose des activités tout au long de l'année, favorisées par un climat hivernal agréable. Distances clés vers les points d'intérêt Plage de Lo Pagan : 0,7 km Port de plaisance et port de San Pedro del Pinatar : 1,5 km Centre commercial Dos Mares : 2 km Golf Lo Romero : 10 km Aéroport de Murcie Corvera : 35 km Aéroport d'Alicante : 80 km Investissez ou profitez du style de vie méditerranéen Contactez-nous dès aujourd'hui pour obtenir plus d'informations ou pour organiser une visite de ces appartements neufs avec licence touristique à Lo Pagan, San Pedro del Pinatar, et assurez-vous une place au bord de la mer.
Caractéristiques
Général
Surfaces
Etat
Equipment
Prix
127.900 €
2.907 €
Hypothèque
FRAIS MENSUELS
---
Montant total
Propriété + frais - entrée
---
Voir le détail
Les résultats sont indicatifs et non contraignants et sont calculés sur la base des données saisies.
Certificat énergétique
|
CALIFICACIÓN ENERGÉTICA
|
Consumo energía kW h / m2 año |
Emisiones CO2 kg CO2 / m2 año |
|---|---|---|
| A | ||
| B | ||
| C | ||
| D | ||
| E | ||
| F | ||
| G |
Situation et environnement











