Description
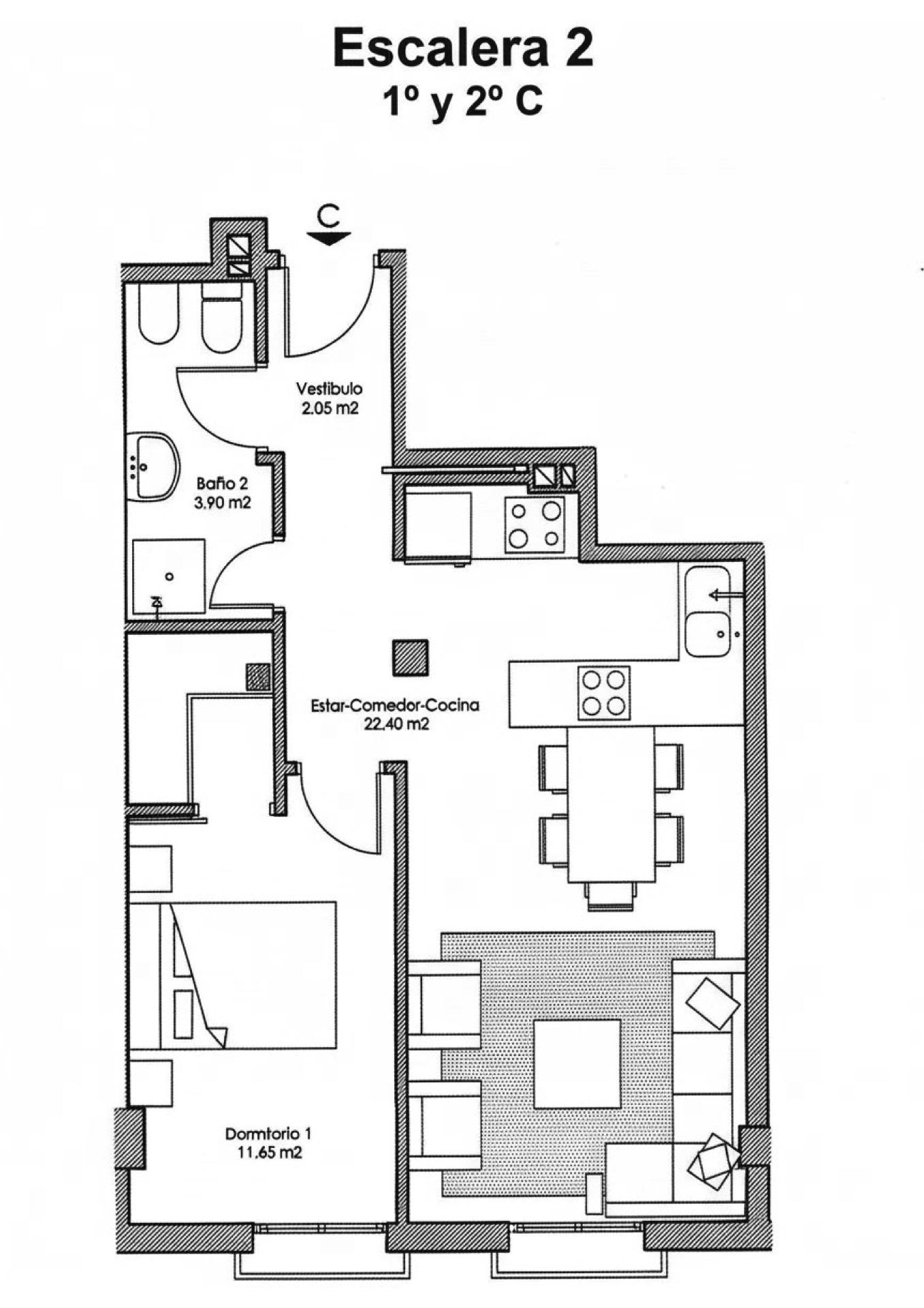
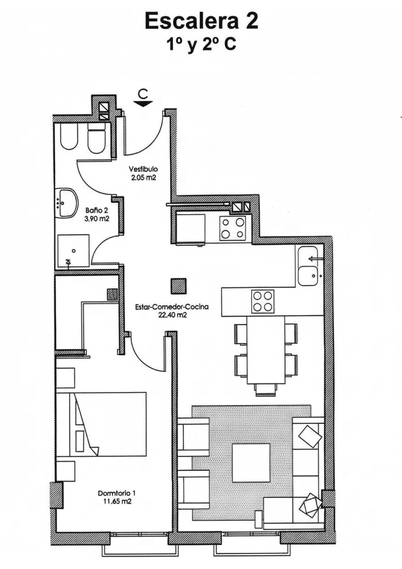
Appartements neufs à vendre à Avileses Murcia : excellente opportunité d'investissement Immeuble résidentiel avec 19 appartements neufs Ce nouveau programme immobilier à Avileses Murcia propose une sélection de 19 appartements conçus pour offrir confort, fonctionnalité et excellent rapport qualité-prix. Les acheteurs peuvent choisir entre des logements d'une, deux ou trois chambres avec une ou deux salles de bains, ce qui en fait une option idéale pour les couples, les familles ou les investisseurs à la recherche d'un bien immobilier abordable dans un emplacement bien desservi. L'immeuble comprend un ascenseur pour faciliter l'accès à tous les étages et certains appartements disposent d'une place de parking privée. Finitions de qualité et packs cuisine en option Tous les appartements sont prééquipés pour la climatisation, garantissant un confort tout au long de l'année. Les cuisines sont livrées non meublées, ce qui permet aux acheteurs de personnaliser leur espace. Pour plus de commodité, un pack de mise à niveau en option est disponible, comprenant des meubles de cuisine, des appareils électroménagers, un meuble de salle de bains avec miroir et des parois de douche. Ce pack est proposé à partir de 5 200 euros pour les appartements d'une chambre, offrant un excellent rapport qualité-prix et une option clé en main pour les futurs résidents. Emplacement privilégié au centre d'Avileses Le bâtiment est situé au cœur d'Avileses, un village paisible appartenant à la municipalité de Murcie. Son emplacement central permet d'accéder à pied à toutes les commodités quotidiennes, notamment des supermarchés, des cafés, des restaurants et des services locaux. La région est connue pour son mode de vie détendu, son environnement agricole et sa proximité avec plusieurs terrains de golf renommés, tels que Peraleja Golf à 6 km et New Sierra Golf à 8 km. Les belles plages de la Mar Menor et du littoral méditerranéen sont également facilement accessibles, à environ 20 km. Excellente connectivité dans toute la région Avileses bénéficie de liaisons routières pratiques vers les villes voisines et les principales destinations de Murcie. Parmi les points d'intérêt notables, citons Gare ferroviaire de Balsicas à 7 km San Javier à 14 km San Pedro del Pinatar à 22 km Centre-ville de Murcie à 29 km Aéroport international de Murcie Corvera à 16 km Grâce à un accès facile aux principales routes, les résidents peuvent se rendre rapidement aux centres commerciaux, aux zones de loisirs, aux complexes de golf et aux attractions côtières. Maisons neuves abordables prêtes en janvier 2026 Ce projet immobilier représente une occasion rare d'acheter une maison neuve à Murcie à un prix exceptionnel. Que vous recherchiez une résidence permanente, un pied-à-terre pour les vacances ou un investissement locatif, ces appartements offrent un fort potentiel dans une région en pleine croissance. Contactez-nous dès aujourd'hui pour obtenir plus d'informations ou pour réserver votre logement avant l'achèvement des travaux.
Caractéristiques
Général
Surfaces
Etat
Prix
78.000 €
1.773 €
Hypothèque
FRAIS MENSUELS
---
Montant total
Propriété + frais - entrée
---
Voir le détail
Les résultats sont indicatifs et non contraignants et sont calculés sur la base des données saisies.
Certificat énergétique
|
CALIFICACIÓN ENERGÉTICA
|
Consumo energía kW h / m2 año |
Emisiones CO2 kg CO2 / m2 año |
|---|---|---|
| A | ||
| B | ||
| C | ||
| D | ||
| E | ||
| F | ||
| G |
Situation et environnement




















