产品特点
通用
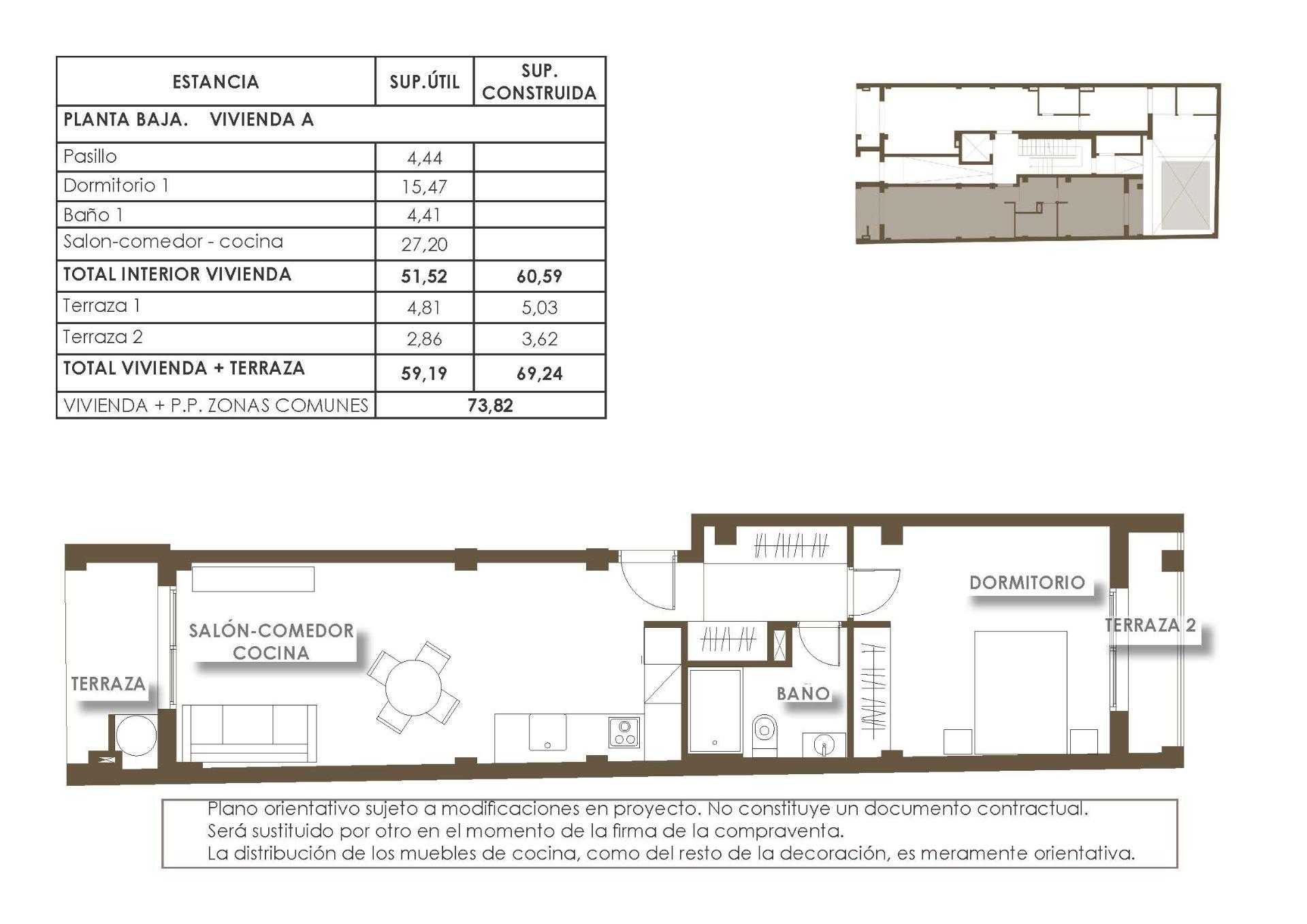
1 卧室
1 浴室
表面
构建: 60
m2
状态
全新
设备
池
价格
能源证书
|
CALIFICACIÓN ENERGÉTICA
|
Consumo energía kW h / m2 año |
Emisiones CO2 kg CO2 / m2 año |
|---|---|---|
| A | ||
| B | ||
| C | ||
| D | ||
| E | ||
| F | ||
| G |
位置和环境
Torrevieja (Alicante)






















