Beskrivning
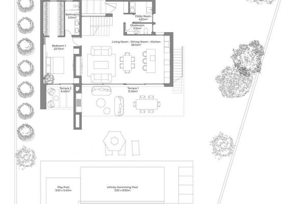
Nybyggda moderna villor med privat pool i Desert Springs Resort Dessa villor ligger inbäddade i det prestigefyllda Desert Springs Golf Resort och är sinnebilden av modern lyx, där sofistikerad design smälter samman med en fantastisk naturlig omgivning. De fristående villorna med 3 eller 4 sovrum har en sofistikerad arkitektur som erbjuder rymlighet, avskildhet och en utsökt tillflyktsort för ett raffinerat boende. Bottenvåningen, som är genomtänkt utformad för ett bekvämt boende både inomhus och utomhus, har ett rymligt dubbelrum med eget badrum och privat terrass, vilket skapar en elegant oas. Det öppna vardagsrummet och matplatsen flyter smidigt över i soliga terrasser – perfekta för måltider utomhus. Det eleganta köket, tillverkat av högkvalitativa material, förbättrar både funktionalitet och elegans. När du går upp till första våningen välkomnas du till en privat oas. Master-sviten, komplett med ett lyxigt badrum, har direkt tillgång till en stor privat terrass som erbjuder en avskild oas med panoramautsikt. Ytterligare generöst tilltagna sovrum erbjuder mångsidigt boende, perfekt för familjen eller gäster. Villorna ligger på generösa tomter på mellan 785 m² och 1 269 m² och erbjuder en enastående utsikt över en lugn sjö, med Sierra Cabrera-bergen som dramatisk bakgrund. Med plats för parkering av 2 bilar, ett förråd, fullt installerat luftkonditioneringssystem och möblerade kök utrustade med vitvaror. Med sin moderna design, förstklassiga finish och exceptionella läge omdefinierar dessa villor lyxigt resortboende och erbjuder en oöverträffad blandning av sofistikering, komfort och naturlig skönhet.
Beskrivning
Allmänt
Ytor
Status
Utrustning
Pris
1.050.000 €
5.469 €
Hypotekslån
MÅNADSAVGIFT
---
Totalt belopp
Fastighet + kostnader - entré
---
Se uppdelning
Resultaten är vägledande och inte bindande och beräknas på grundval av de inmatade uppgifterna.
Energicertifikat
|
CALIFICACIÓN ENERGÉTICA
|
Consumo energía kW h / m2 año |
Emisiones CO2 kg CO2 / m2 año |
|---|---|---|
| A | ||
| B | ||
| C | ||
| D | ||
| E | ||
| F | ||
| G |
Plats och omgivning















