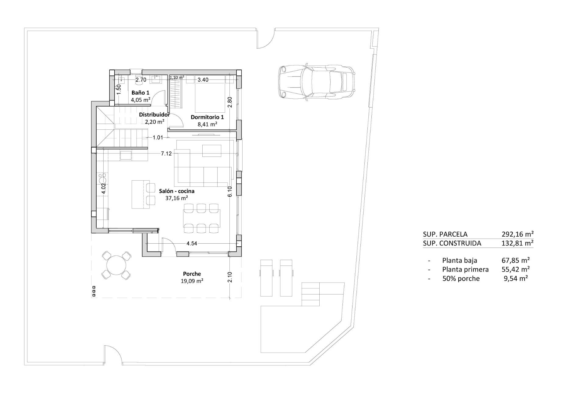
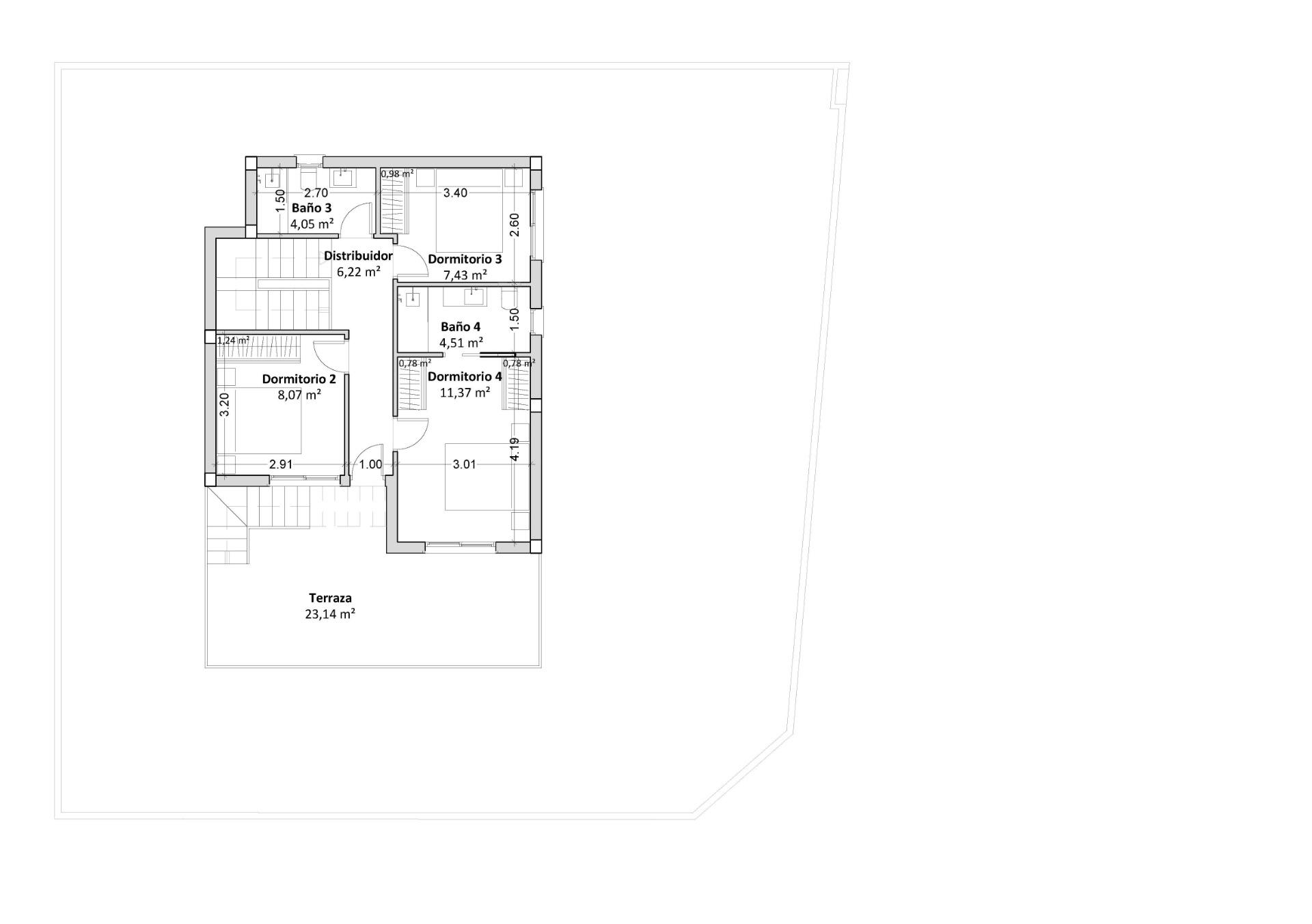
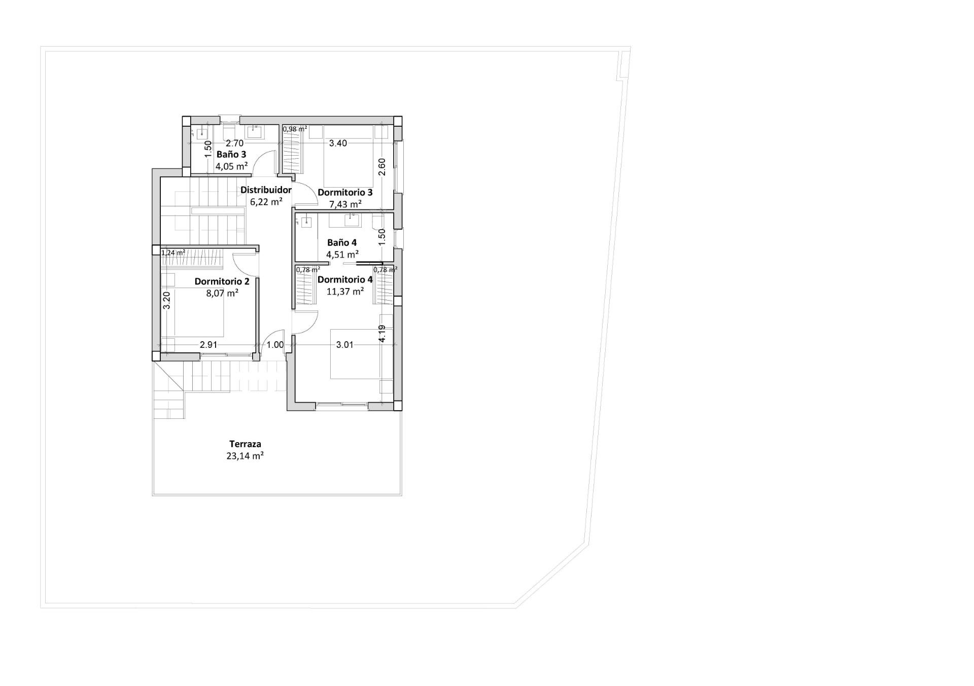
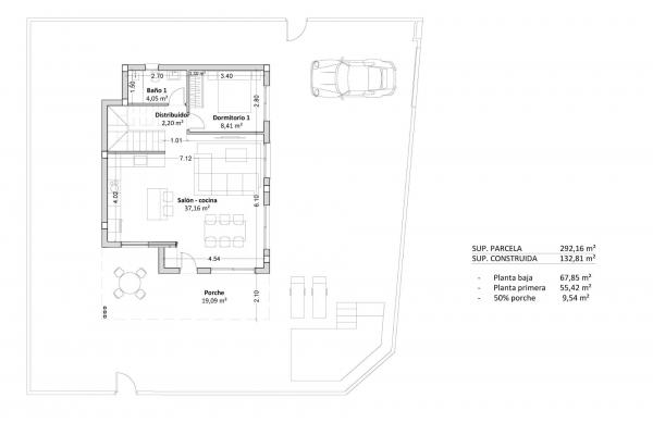
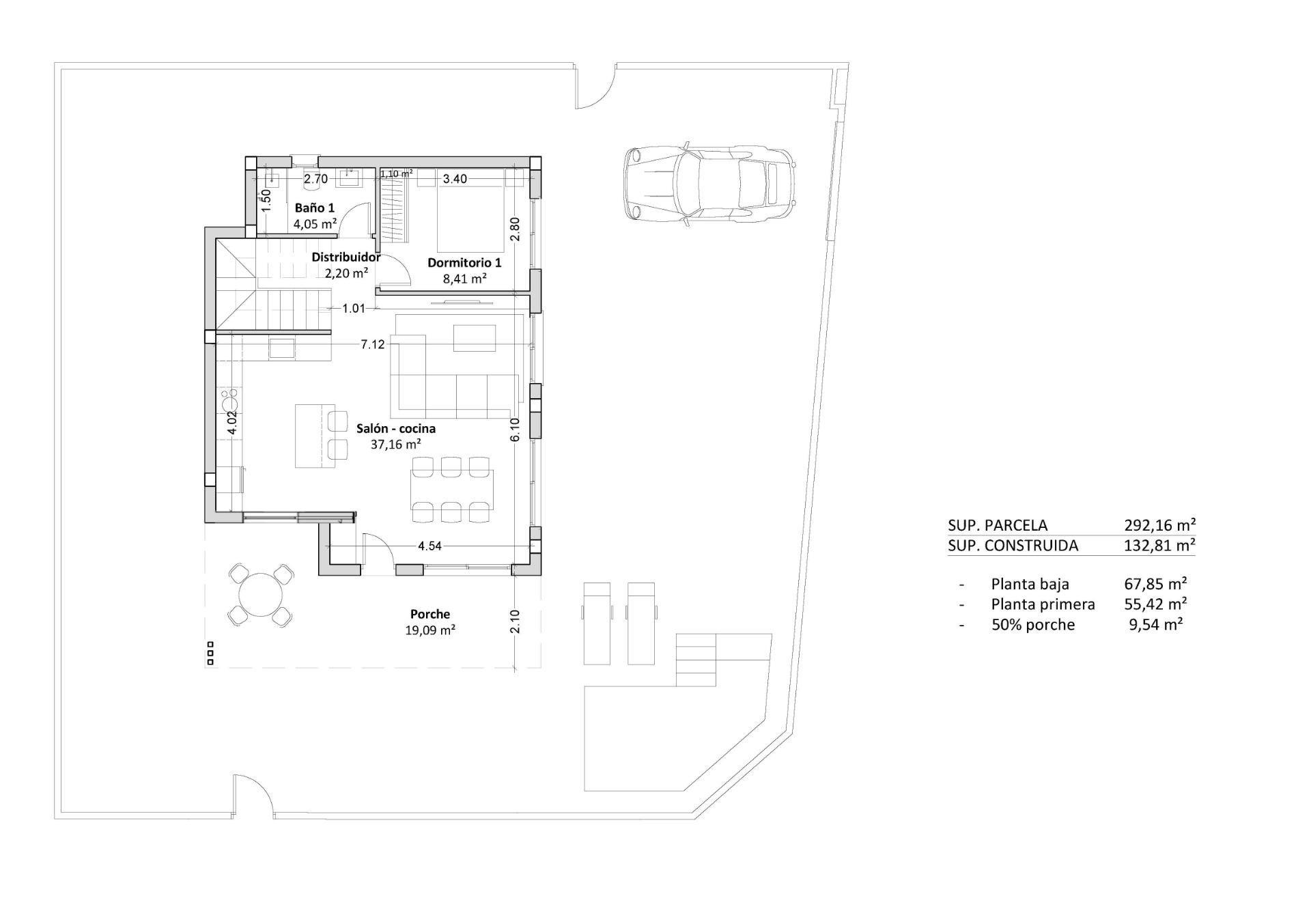
Característiques
General
4 Dormitoris
3 Banys
Superfícies
Parcel·la: 292
m2
Construïda: 132
m2
Estat
Per estrenar
Equip
Piscina
Preu
745.000 €
5.644 €
Hipoteca
€
Min: 0 €
Màx: 745.000 €
anys
Min: 5 anys
Màx: 30 anys
QUOTA MENSUAL
---
Quantitat total
Finca + despeses - entrada
---
Veure desglossament
Els resultats són orientatius i no vinculants i es calculen a partir de les dades introduïdes.
Certificat energètic
|
CALIFICACIÓN ENERGÉTICA
|
Consumo energía kW h / m2 año |
Emisiones CO2 kg CO2 / m2 año |
|---|---|---|
| A | ||
| B | ||
| C | ||
| D | ||
| E | ||
| F | ||
| G |
Situació i Entorn
Pilar de la Horadada (Alicante)
























