ميزات
عام.
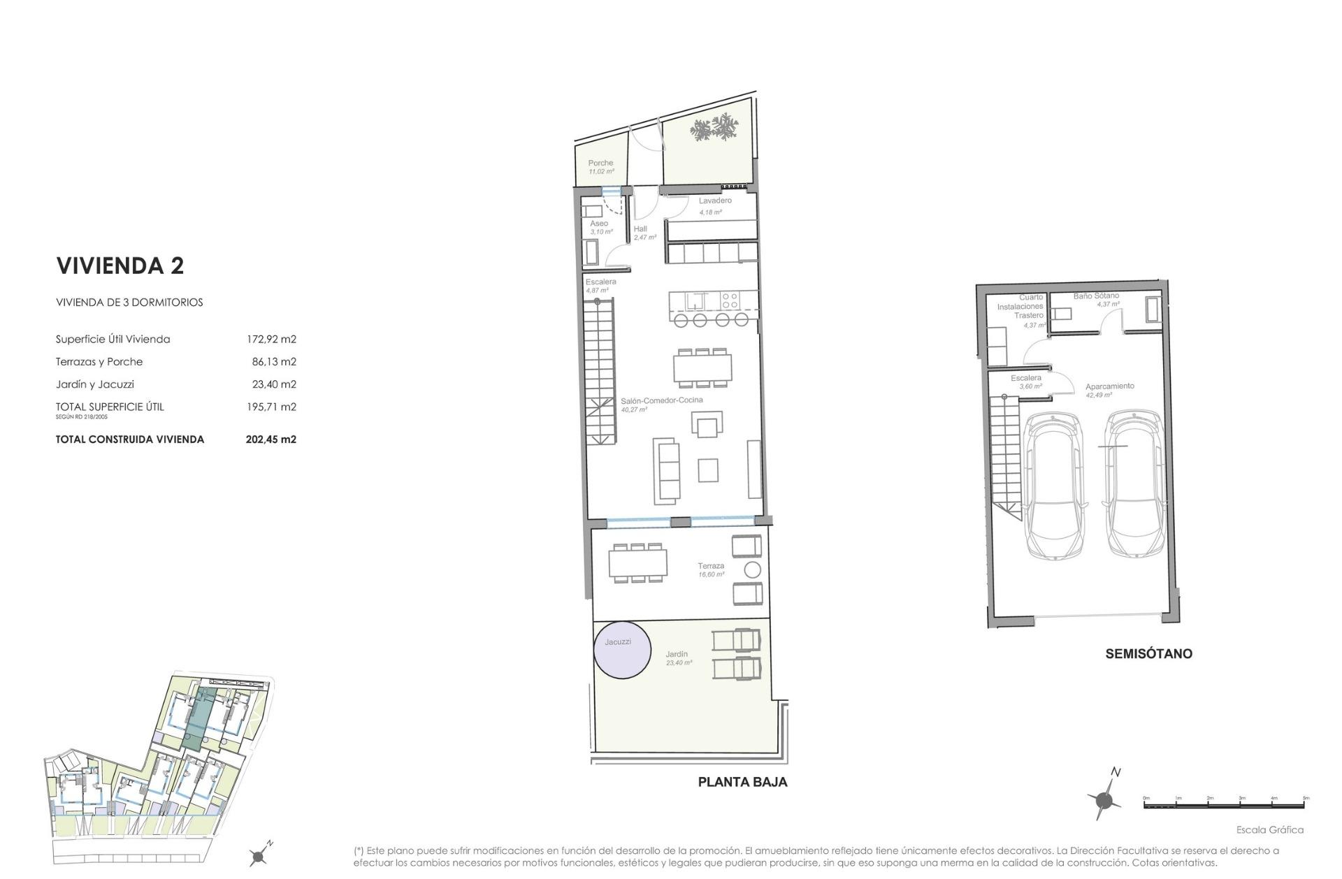
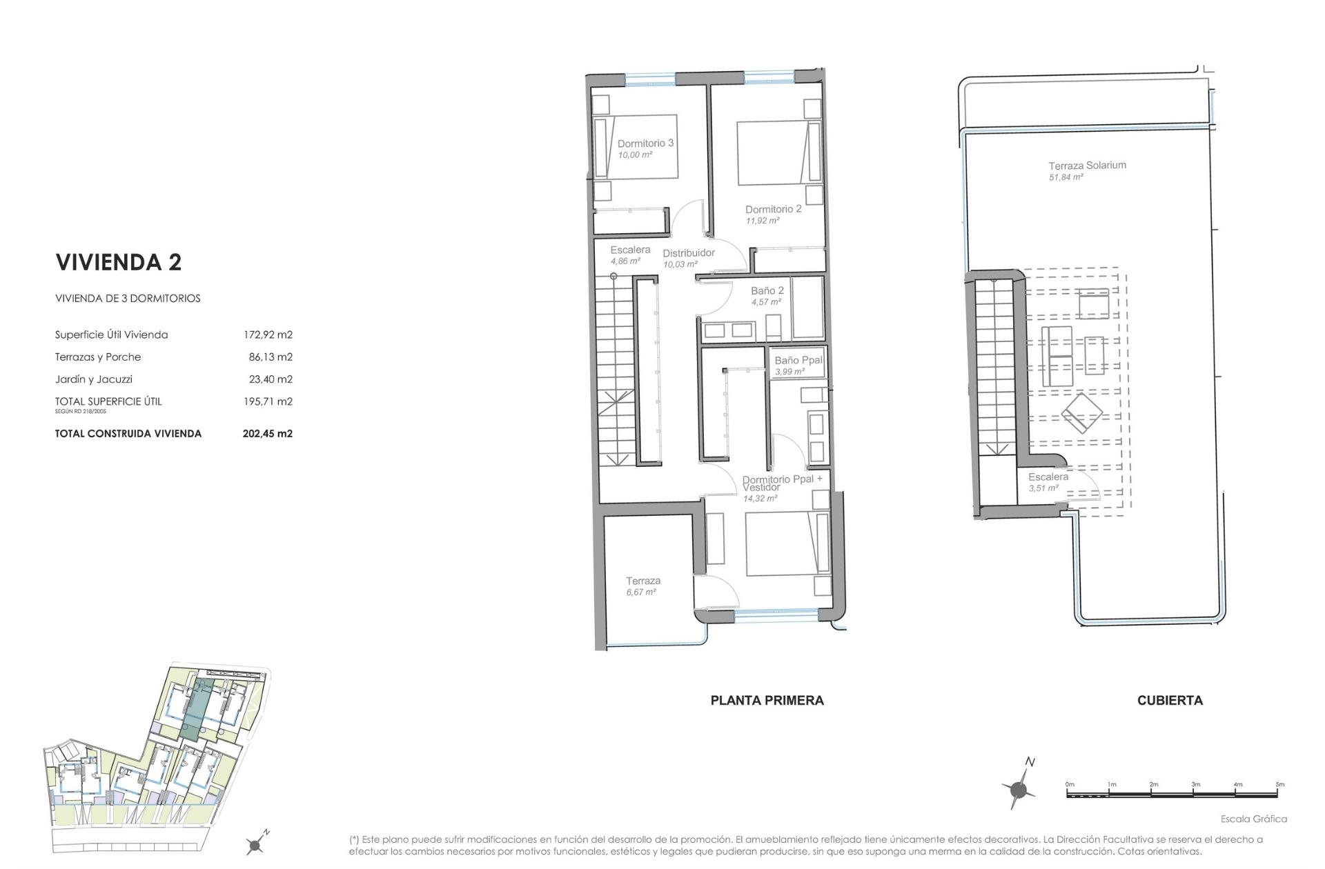
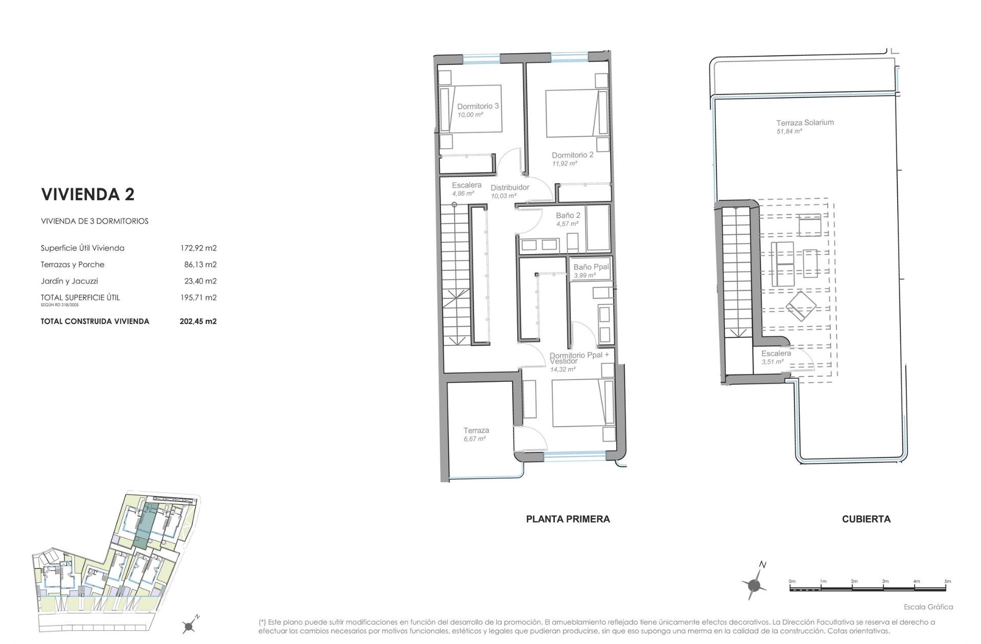
بيوت ريفيية
غرف نوم 3
حمام 3
السطوح.
مؤامرة: 34
m2
تشييد: 172
m2
حالة
العلامة التجارية الجديدة
السعر
575.000 €
3.343 €
الرهن
€
Min: 0 €
Max: 575.000 €
السنين
Min: 5 السنين
Max: 30 السنين
الرسوم الشهرية
---
المبلغ الإجمالي
العقار + النفقات - المدخل
---
انظر التفاصيل
النتائج استرشادية وليست ملزمة ويتم حسابها على أساس البيانات المدخلة.
شهادة الطاقة
|
CALIFICACIÓN ENERGÉTICA
|
Consumo energía kW h / m2 año |
Emisiones CO2 kg CO2 / m2 año |
|---|---|---|
| A | ||
| B | ||
| C | ||
| D | ||
| E | ||
| F | ||
| G |
موقع والبيئة
Mojácar (Almería)












